杜比全景声,定制类多功能影音室 ——丹麦达尼高端影音专业私人住宅案例赏析


项目基本信息

 

项目位置:南延线蔚蓝卡地亚位于天府新区,会同TCDL香港陈建中、Bell Collions 贝尔高林、HKR香港兴业关梓宏等设计大师及多家国际知名建筑、景观事务所,以新古典主义风格诠释高尚城市名宅新概念,倾力打造品质生活,是宜业宜商宜居的国际现代高端城区。

 

实施方:东和盛泰智能影音公司

案例类别:独家定制类型多功能影音室

投入资金:50万左右

空间信息:长7.2m*5.54m,面积约40㎡

业主基本信息介绍:项目对接人李总,是此项目别墅的业主,喜欢温馨的家庭氛围。无论是看电影,还是全家聚在一起K歌娱乐,都是很好的选择。

 

 10.jpg

 
用户基本需求:对于顾家的业主来说,家居中大到装修布局,小到一草一木都非常有要求,所以对于项目中的视听室要求严格。

 

首先是对于装修的要求,外在整体风格希望大气简约,内在声场声效、隔音处理做到不扰邻居,同时希望音效表现还原度高,声音优美耐燥。其次是对于器材的要求,需是国际音响品牌,喜欢定制安装系列的产品,要有杜比全景声的器材搭配。最后是对于K歌系统的要求,全家都喜欢唱歌,每个人声音特色各不相同,希望这套唱歌系统能满足全家声音特色。

 

成品展示

 

 11.jpg

 

丹麦达尼7.2.4杜比全景声影院系统

 

主音箱:DALI PHANTOM S-80*2只

中置音箱:DALI PHANTOM S-80*1只

环绕音箱:DALI OPTICON LCR*4只

吸顶音箱:DALI PHANTOM H-60*4只

低音炮:DALI SUB K-14F*2只

前级功放:天龙/AVC-X6500H*1台

后级功放:ATI/1807*1台

投影机:索尼/VPL-VW278*1台

画框幕布:OS/150寸透声*1幅

硬盘播放器:海美迪/HD920B II*1台

 

构建过程

 

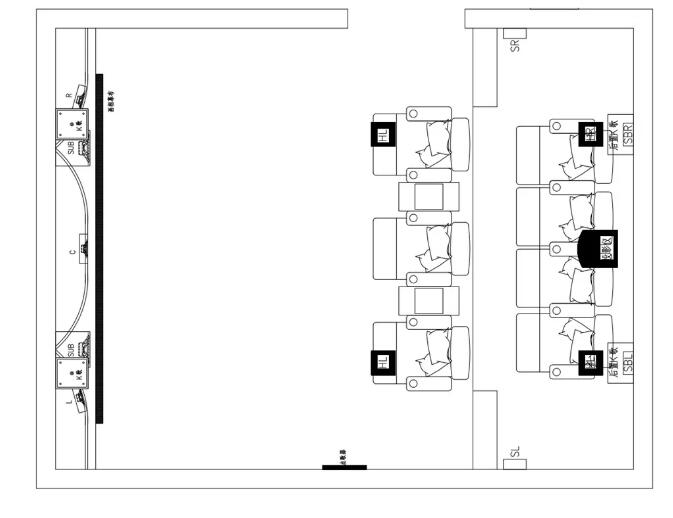
音箱点位图

 

 12.jpg

 

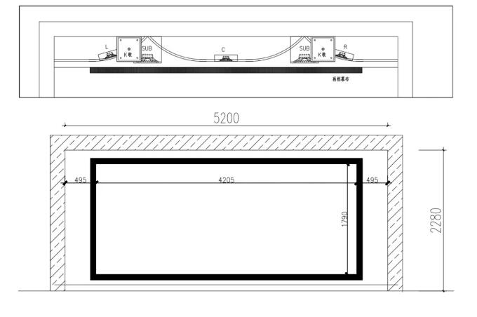
音箱墙立面图

 

 13.jpg

 

幕布立面图

 

 14.jpg

 

1、整体风格构建

 
首先是业主对于装修的构建——整体风格希望简单且大气。前期我们集中做了几种影院的设计风格供业主选择,以实际测量现场尺寸出了效果图,以及细致全面的施工图,真实1:1高还原度的三维视觉呈现给李总,使其一目了然,以更好理解的方式去诠释风格效果。

 

2、空间声场构建

 
影音室天花云扩散体,其独特的声学特性和多元化的。美学装饰效果,可以有效的改善声场环境,营造一个良好的声音扩散体系。使声音更加丰富、均衡,更具空间感,大大增加了观影氛围。

 

 15.jpg

 

墙面分别用弧形声学体、调谐板。弧形声学体弧形90度水平扩散面,20%不对称狭缝机能宽带吸收,内置三角 低频吸收腔体,复合环保声学物质充分填埋处理,有效吸收小空间角落250Hz低频声驻波,同时又将集结于角落的有益声能水平扩散回归既定空间,最大程度上降低建声系统对声能量的损耗。

 

调谐板有效控制声波中最大的一次主反射,还原厅堂的自然氛围感凸露吸收面立体结构使它有效地改善较大声压级产生的混响和回声过多的声叠加可到后空腔扩展配件,可以增加多达一个八度的低音吸收空间容积,可与低频下延伸到75Hz,使其在大动态音频应用时成为低频响音中理想的低音陷阱。

 

 16.jpg


总体设计达到业主要求,内在声场声效隔音处理做到不扰邻居,同时音效表现还原度高。

 

3、器材选择

 
满足业主另一要求,器材的选择选用丹麦达尼,凭借30余年的经验和全球顾客的认可,达尼在全球拥有100万以上的满意用户。

 

达尼PHANTOM S系列是呈献完美音质的顶级入墙式音箱。8英寸主动式低音单元的最优化设计,无论低音或中音区域均表现完美。为确保最佳低音表现,我们还为该系列中较大型的两款音箱额外配置了10英寸被动辅助低音单元,配合主动式低音单元,输出的全音域出色表现,丝毫不逊于落地式音箱。

 

该系列的超薄箱体设计可以轻易融入几乎任何标准墙面。所有款型均以可旋转式混合高音模组为中心组合,便于适应任何音响用途——无论是立体声、中央声道或环绕声,均游刃有余。

 

采用久经验证的多种音响技术,如实心中密度纤维前障板、木纤维纸质音盆、低损折环和顶尖磁路系统设计,结合我们最前沿的创新成果——软磁性复合物(SMC)磁极柱,以及标志性混合高音模组,PHANTOM S系列品质出类拔萃,卓尔不群。

 

 17.jpg


产品的核心优势,在于完美呈现高亢或舒缓的音乐,并且无论音量大小都能带来纯净音质,丰富细节和立体感的声场,满足业主对于音效表现“还原度高,声音优美耐燥”的要求。

 

达尼PHANTOM H系列是吸顶式音箱,秉承传统的音箱技术。中心是清晰可辨的低音音盆,由纸浆和木纤维制成,轻巧、性能良好,但采用随机结构构造,能完美再现音乐中的最细腻之处。PHANTOM H- 60音箱是尺寸和性能之间的完美平衡,为中等大小的房间提供充分和完整的音频体验。满足业主对于定制安装系列音箱的需求。

 

 18.jpg

 

投影机选用索尼VPL-VW278,VPL-VW278配置了Sony专门为4K超高清而打造的0.74英寸SXRD显示芯片,拥有4096×2160的画面分辨率,同时搭配成熟的高压水银灯泡光源,既有不错的画面能量感与塑造力,同样也能呈现出不俗的色彩还原。

 

而在HDR方面,与Sony其他几款机型相同的是都能兼容HDR10与HLG两种规格,要应对主流的UHD 4K超高清蓝光的播放绰绰有余。而机身之中还配备了大范围的电动变焦镜头以及带有大范围的镜头位移功能,对于一款4K主流定位的机型并不多见,非常便于安装与调校。此外,VPL-VW268还具有索尼独特的真实创作功能、特丽魅彩显示技术以及Motionflow动态影像补偿技术,可以有效地提升画面在细节锐度以及动态影像方面的表现力。

 

此外,VPL-VW278在外形上一改索尼以往在4K家庭影院投影机系列浓重的专业气息,选用了时尚感十足的全白外形,即使直接放置在桌面上投射也能够轻松融入年轻前卫的家居装潢环境之中。

 

设计心得

 

如今在电影院中看电影已经不是什么新鲜事,但在家中留出一块私人空间,按照自己的喜好,在色彩和空间布置上,展现独特的风格。影院方案与落实,从构思到细节体现,专业性,需要一个公司对一个行业的追求,更需要一颗爱这行业的心。设计团队由繁至简,让这个影音室更纯粹,更多的利用空间,真正的考虑到细节以及影院真实声音。

 

一套好的影音器材没有一个好的听音环境做配合,是无法发挥其效果的!“初级玩器材,中级玩线材,高级玩空间”,优良的听音空间对提高音响效果的确意义重大。