Rob在很早的时候就接触到了家庭影院的概念。“大约30年前我上大学的时候,我宿舍里的一个家伙有一台大的CRT投影机和一台激光光盘播放器,他经常在我们宿舍的公共休息室里播放电影。从那时起,我就有了在我居住的各个地方都建造一个某种形式的影院的想法。”
如今,Rob与他的妻子和三个女儿住在威斯康星州密尔沃基的郊区。作为一名成功的IT专业人士,他终于能够建立一个专用的家庭影院。 “10年前,当我和妻子决定建造我们的房子时,我们想建造一个专用房间作为地下室的一部分。在我们以前拥有的所有房子中,我们是在现有空间内建立了一个非专用的影院。
“我想自己建造,和地下室的其他房间一起。影院是我们工作的最后一个房间,因为我们希望先完成生活和娱乐空间。等待也有一些好处,那就是处理器和投影机方面的技术在不断进步。”
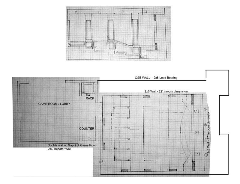
地下室的外墙对于影院来说有12英尺的高度。
这是一个漫长的等待—从他们建造房子到开始建造影院有八年的时间。 但他们从一开始就为它留出了空间。“因为我们是从零开始设计房子的,所以我们可以完全按照我们的意愿来建造空间。我们想要高的天花板,既要美观又要放置天空音箱。我们让建筑商往下挖,这样房间就会有12英尺高,这比地下室的其余部分深三英尺。”
影院地板比地下室其余部分低三英尺,因此天花板高12英尺。在成为出色的家庭影院之前,这里有很长一段时间曾是孩子们的游戏室。
“在很长一段时间里,我们在未完工的房间里有一个充气蹦蹦床供孩子们玩耍。在那段时间里,我一直在不断调整和重新设计这个房间,我从论坛上的许多建筑中收集信息进行分析"。
Rob的最终计划相对简单,但它们却有效地反映了他的意图。
最后,Rob开始建造。“这花了大约2年时间,因为我和我的妻子都是自己做的。论坛里的构建线程是一个惊人的信息来源,几乎可以处理任何事情。如果我在建造过程中遇到不确定的地方,我会在许多建造过程中找到大量的例子,并找到最适合我情况的解决方案。
“在构建技术方面,我效仿了大家的共识:如果10个建筑中有8个做了同样的事情,并且喜欢这样的结果,我就会照做。另外,我在做的过程中拍了很多详细的照片,这样对其他人的构建可能会有帮助。"
为了达到最大的隔离效果,影院是一个房中房,使用2×6的螺柱作为框架。
Rob通过研究论坛上的构建学到了很多东西。“这是一个房中房,2×6的螺柱与天花板托梁分离。墙壁上有双层5/8"石膏板和绿色胶水,5/8"欧松板(定向结构刨花板),天花板上有5/8”石膏板带夹子和通道——感谢隔音公司!”
Rob在天花板上使用了夹子和通道,以便更好地与房子的其他部分隔离。
“地板是一层厚重的橡胶垫,然后是两层带有绿胶的欧松板。沙子填充的台阶和绝缘材料填充的立柱都建在上面。这使得整个房间的低音炮都能产生非常好的触觉响应,同时几乎所有的声音都不会泄漏到房子的其他部分。我说“几乎”,是因为当我们在参考电平上运行PSA TV42 IPAL低音炮时,我们可以听到并感觉到一点隆隆声穿过房子,就像远处的雷暴。我认为这是一个胜利,因为低音炮可以很容易地播放+10dB曲线降至13Hz的参考电平。
像大多数家庭影院一样,绿色胶水被用来粘合各层石膏板。
正如Rob解释的那样,“声学设计完全是在遵循无数其他构建之后DIY的。扬声器布局、屏幕尺寸和距离等都是利用论坛和其他网站上发布的信息完成的,并在发现有冲突信息时提出问题。”
HVAC系统使用超大的软管道将噪音降至最低。
Rob学到的一个重要经验是优化基础设施的重要性。“房间有一个专用的HVAC区域,使用超大的软管道和消音盒。我在房间里安装了一个新的配电盘,这样专用的20安培断路器就可以用于配电盘同一相位上的所有放大器、低音炮和其他设备,以限制任何接地回路问题。”
拱腹上安装天空音箱。
只有三件事不是Rob自己做的。“第一,石膏板泥浆和胶带;我已经做了很多次,我知道我自己做得很糟糕!第二,地毯。第三,一个愚蠢的举动,我不得不让HVAC团队回来把楼上的炉箱从房间中央移到侧面,这是我在建造房屋时就应该发现并解决的问题。”
屏幕墙的后面包括供LCR扬声器和低音炮使用的空间。
与许多专用家庭影院一样,Rob使用了透声幕,并将前置LCR扬声器和低音炮放置在它后面。“屏幕墙在后墙前约三英尺处,隐藏了LCR、低音炮以及我用废木材和剩余的绝缘材料建造的一个巨大的低音陷阱。房间里的本底噪音很低,一开始有点不适应,但我现在明白了防止声音进入和防止声音传出是多么重要。”
在这里,你可以看到屏幕后面的低音陷阱的演变。
Rob充分利用了他能得到的所有帮助。“我真的很幸运能成为威斯康星/伊利诺伊家庭影院团体的一员,成员之间会互相帮助,许多成员都是音频和视频校准员。我们尝试每月在不同的房子里见面,聚在一起演示彼此的房间。”
前置扬声器和低音炮就像它们应该的那样位于一个黑暗的空腔内。
这些扬声器是Rob的最爱。“我的扬声器是传统的M&K型号,长期以来,它们一直被卢卡斯影业和其他工作室用来制作一些最伟大的电影。对我来说,它们听起来绝对是神奇的。”
支撑环绕音箱的柱子都是深色橡木。
构建完成后,Rob开始校准音频。“这是我使用的第一个独立影音室,带有Dirac低音控制的Monolith HTP-1改变了游戏规则。我买了一个UMIK-1麦克风,并学习了Dirac和REW的基础知识。起初看起来很复杂,但如果你花时间去阅读和学习它的工作原理,会有很多很棒的人提供帮助。”
设备架位于影院入口的外面。
正如你所料,Rob对最终的结果非常满意。“老实说,这是我做过的最不可思议的影音室。在WI/IL地区包括许多出名的的JTR低频爱好者,所以我知道“疯狂”的声音是什么样子。我更喜欢为电影定制的8dB曲线和4-6dB音乐曲线。这是另一回事;我现在重新发现了我所有的旧SACD,尤其是重新制作的5.1混音,听起来很棒。”
大厅里有电影海报,为即将发生的事情营造氛围。
我向Rob询问了他所面临的挑战。“大多数最大的挑战都涉及到我以前从未做过的构建部分。例如,我知道如何做框架和电气,但我从来没有做过家具级的橱柜装饰。我们想要深色的橡木木制品和柱子,这个房间里有很多木制品。我们在建房子的时候联系了做厨房橱柜的公司,他们的橱柜师傅说我可以去他们的车间,他可以教我怎么做。从行业专家那里学习这个过程是一次了不起的经历。”
影院房间的入口处有那种老式经典电影院的感觉。
入口的门并不像它们看起来的那样。“从大厅看,它看起来像一扇巨大的双门,位于房间的中央。但只有左边的门是真的;另一扇门是假的。这有两个目的:隔音,这就是左后环绕音箱所在的位置。”
完工后的影院真是太棒了!
对于Rob来说,实现他的梦想需要一个村庄。“在整个建造过程中,我们争取到了朋友和家人的帮助,从中获得了很多乐趣。我们的女儿学会了如何上色和粉刷墙壁!”
天花板是一个特别的亮点,让人想起巴黎和新奥尔良的带图案的锡制天花板。
Rob和他的妻子将他们的房间称为Fleur de Lis(鸢尾花)影院。“我和我的妻子是新奥尔良和文艺复兴时期的巴黎和意大利文化的忠实粉丝,我们以各种方式将鸢尾花融入到地下室的装饰中。”
座椅由10张HT Design Clark躺椅组成。
第二排座椅提升器可额外增加三英尺的高度,还具有声学功能。“当我们建造立柱和楼梯时,它们变成了非常大的低音陷阱,因为后面有3英尺深,与影院后部的入口相匹配。我的妻子希望能够坐10个人:我们一家五口加上几个朋友。”
在整个过程中,最伟大的时刻是什么?“我们直接看完了第一部电影。我们选择了《夺宝奇兵3之圣战骑兵》。我们在整部电影中都笑得合不拢嘴!现在,我们第一次和我的孩子们一起重温那些‘老’的经典电影。我是在商业电影院看《星球大战》、《夺宝奇兵》、《七宝奇谋》和《外星人》长大的,现在他们也可以在我们的私人影院里看同样的电影了。
与家人和朋友一起做所有的工作肯定节省了很多钱。那么,最终成本是多少呢?“大约79,000美元。我从不同的卖家那里买了很多二手设备,这省下了一大笔钱,这些钱都花在了那些未来不容易改变的东西上,比如房间本身。例如,我认为滑出式设备架的建议零售价接近3000美元,但我发现它的二手价格为266美元。很多年前,当Gen 3发布,Gen 2打折时,我买了Emotiva Gen 2放大器。我的投影机是一台旧的JVC DLA-RS400,有一个新的灯泡可以让我们使用几年。我们从使用MadVR的HTPC上运行它,所以所有的动态色调映射和升频都是在外部处理的。"
大多数论坛成员都非常清楚,家庭影院永远不会真正结束。“虽然我说影院已经完工了,但我认为它从来没有真正完工过。我计划在座椅上添加一些Crowson触觉运动单元,并在一些吸音板上做更多的设计工作。”
即使没有这些,Rob的“鸢尾花”影院在各方面也都非常出色。恭喜Rob取得了卓越的成就!
设备清单:
信号源
运行MadVR的HTPC(AMD Ryzen 5 5600G 3.9 GHz,GeForce RTX 3060 12GB GDDR6显卡)
Synology DS2422+NAS,配备18 TB WD Red Pro硬盘
Nvidia Shield Pro游戏机
松下 DP-UB820超高清蓝光播放器
AV系统
Monolith HTP-1 16通道处理器
Emotiva XPA-5 Gen 2 5通道功率放大器(3;300 wpc @ 4 ohms)
投影机
JVC DLA-RS400
幕布
Seymour AV Center Screen XD(140英寸对角线,16:9,1.2增益,固定,透声幕)
音箱
M&K S-5000 THX (3, LCR)
M&K SS-150 THX 三向发声环绕(6个,环绕,设置为单向)
RSL C34E 吸顶式(6个,顶置,安装在拱腹中)
Power Sound Audio TV42 IPAL 低音炮(2个21"单元,4000W放大)
电缆
Belden 5T00UP 10AWG 2C Hi-Flex CL2级扬声器电缆(LCR扬声器)
Monoprice Access系列12AWG CL2级双芯扬声器电缆(其余扬声器)
Monoprice 75' Premier系列XLR公头转XLR母头16AWG互连电缆(低音炮)
Infinite Cables HDMI 2.1超高速HDMI电缆(8K@60Hz,48Gbps)
CL3 30AWG互连电缆(6',信号源)
RUIPRO Fiber Optic HDMI 电缆(20',投影机)
控制
使用HT Web Remote的Web浏览器,由SirMaster制作的DIY IP遥控器
照明场景 (6) 由Insteon hub使用应用程序或Alexa命令控制
屏幕墙后面的IR中继器,以备需要物理遥控器时使用(例如,用于某些UHD蓝光播放器功能)
电源调节
主面板上的全屋电涌保护器
SurgeX Axess Elite SX-AX20E 20A 网络式电源调节管理系统
CyberPower CP1500PFCLCD PFC Sinewave UPS系统(用于前置放大器、投影机插座和5端口路由器)
AC Infinity CLOUDPLATE T7以上安培的冷却系统
声学处理
屏幕后面和立柱内的DIY低音陷阱
GIK 2" Impression Pro系列扩散器/吸音器(侧壁)
Acoustimac 6" 吸音器(中后壁)
Vicoustic Multifuser DC2(左右后壁)
座椅
HT Design Clark(10 个,两排)
房间尺寸
22.5'×17.5'×8'(L×W×H;L包括屏幕后3')
与前排皇帝位的距离为10'(1:1 屏幕宽度,54度视角)
到后排的距离为16'(36度视角)